La prima casa Giapponese stampata in 3D per due persone a meno del prezzo di un’auto
Giuseppe Pontoriero
Serendix50: La Casa Stampata in 3D Che Costa Meno di un’Automobile
In Giappone, la compagnia immobiliare Serendix sta rivoluzionando il concetto di abitare con Serendix50, una casa stampata in 3D il cui costo è paragonabile a quello di un’automobile., questa abitazione offre una soluzione moderna, sicura ed economica per coppie, giovani e persone anziane che vogliono vivere senza essere schiacciati dai mutui.
Un problema reale: abitare diventa sempre più caro
L’incessante inflazione dei prezzi delle abitazioni rende sempre più difficile acquistare casa, sia per i giovani sia per gli anziani. In Giappone, molti giovani continuano a vivere con i genitori per mancanza di mezzi economici, mentre un numero crescente di pensionati a basso reddito è costretto a lasciare le grandi città per trasferirsi in zone rurali.Serendix50 nasce proprio per rispondere a questi problemi, offrendo una casa economica, sicura e sostenibile.
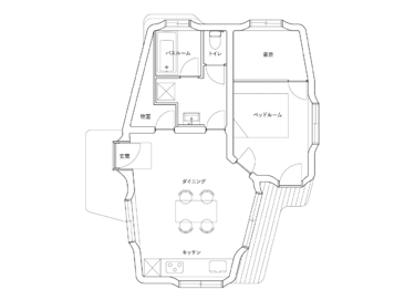
La Serendix50 con una superficie di 50 m² e un’altezza di 4 metri ospita:
Camera da letto matrimoniale
Bagno compatto e completo
Zona living con cucina e soggiorno
Nonostante le dimensioni contenute, la disposizione degli spazi garantisce comfort e funzionalità, rendendo la casa ideale per una coppia o per una persona sola.
Costruzione rapida e sicura
La Serendix50 viene costruita in meno di 48 ore, inoltre la casa rispetta tutti i rigorosi standard edilizi giapponesi, garantendo sicurezza e affidabilità. La struttura è progettata per resistere a terremoti grazie a un design antisismico avanzato, agli incendi grazie a materiali ignifughi, alle infiltrazioni d’acqua assicurando impermeabilità e durata nel tempo e alle variazioni estreme di temperatura, mantenendo il comfort termico in ogni stagione. Inoltre, il tetto è dotato di pannelli solari, che ottimizzano l’efficienza energetica e contribuiscono alla sostenibilità dell’abitazione.
Due tecnologie di fabbricazione digitale
Il progetto combina due tecnologie digitali avanzate:
Robot di stampa 3D per la costruzione delle pareti portanti
Fresa a controllo numerico (CNC) per il taglio preciso del tetto
Questo approccio ibrido garantisce robustezza strutturale, isolamento termico e comfort abitativo, unendo innovazione digitale e progettazione accurata. Il progetto è sviluppato dal Digital Manufacturing and Design Research Center for Emergent Circularity del Keio University Global Research Institute, con la progettazione strutturale di KAP Co., Ltd. e il design di dettaglio di Emu Masuyama, professore associato dell’Università di Miyagi.
Prezzo accessibile: una rivoluzione nel mercato immobiliare
La Serendix50 costa circa 5,5 milioni di yen (circa 31-35.000 euro), cioè oltre il 90% in meno rispetto al costo medio di una casa in Giappone. Attualmente, Serendix può produrre 250 case all’anno, con 50 abitazioni per ciascuna stampante. Con l’integrazione di 12 nuove macchine prevista per il prossimo anno, la capacità salirà a 850 case annuali, rendendo questa soluzione abitativa accessibile a un numero sempre maggiore di persone.










Posizione: Komaki,GIAPPONE
Studio / progettazione: Keio University & KAP Co., Ltd.
Azienda esecutrice: Serendix Corporation
STAMPANTE: Robot di stampa 3D proprietario Serendix
Tecnologia di stampa: Estrusione a strati + CNC per tetto
Materiale: Calcestruzzo locale ottimizzato + prefabbricazione, isolamento termico e acustico
Anno: 2023
Superficie abitativa: 50 m²
Tempo di stampa: 44,5 ore (2 giorni)
Costo: 35.000 €
Altro: Conforme Building Standard Law Giapponese( TERREmoti)


